戸建て・平屋・小屋
他にも会員登録をしたお客様にのみ公開している非公開物件がございます!
戸建て・平屋・小屋 売買物件一覧
507 件中181〜192件を表示しています。
«前のページ
14
15
16
17
18
次のページ»
2012.05.04

- 円

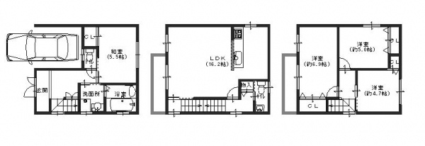
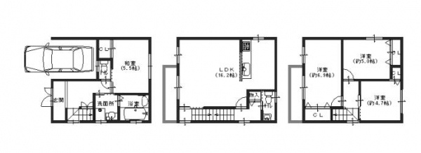
大阪市福島区吉野5丁目

JR大阪環状線 野田駅 徒歩10分
2012.04.24

- 円

大阪市西成区天神ノ森1丁目

阪堺電気軌道阪堺線 聖天坂駅 徒歩1分
2012.04.20

- 円

大阪市浪速区大国2丁目

大阪メトロ御堂筋線 大国町駅 徒歩5分
2012.04.08

- 円

大阪市西淀川区野里0丁目

JR東海道・山陽本線 塚本駅 徒歩8分
2012.04.02

- 円

大阪市西成区天神ノ森1丁目

阪堺電気軌道阪堺線 天神ノ森駅 徒歩3分
2012.03.24

- 円

大阪市北区中崎3丁目

大阪メトロ谷町線 中崎町駅 徒歩3分
2012.03.20

- 円

大阪市住吉区長居西2丁目

JR阪和線 長居駅 徒歩4分
2012.02.17

- 円

大阪市此花区伝法3丁目

阪神なんば線 伝法駅 徒歩6分
2012.02.14

- 円

豊中市刀根山2丁目

阪急宝塚本線 豊中駅 徒歩15分
2012.02.03

- 円

大阪市浪速区大国2丁目

大阪メトロ御堂筋線 大国町駅 徒歩5分
2012.02.03

- 円

大阪市淀川区十三東1丁目

阪急宝塚本線 十三駅 徒歩7分
2012.02.02

- 円

大阪市住吉区長居西2丁目

JR阪和線 長居駅 徒歩3分