中古マンション
他にも会員登録をしたお客様にのみ公開している非公開物件がございます!
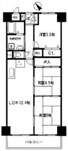
中古マンション 売買物件一覧
2985 件中2365〜2376件を表示しています。
«前のページ
196
197
198
199
200
次のページ»
2011.05.14

- 円

大阪市鶴見区緑2丁目

大阪メトロ今里筋線 新森古市駅 徒歩7分
2011.05.13

- 円

大阪市中央区日本橋1丁目

大阪メトロ千日前線 日本橋駅 徒歩1分
2011.05.11

- 円

大阪市住吉区長峡町

南海本線 住吉大社駅 徒歩1分
2011.05.10
駐車代・管理費・積立費が、お得です。

- 円

大阪市西区立売堀5丁目

大阪メトロ中央線 阿波座駅 徒歩1分
2011.05.10
4L→3Lへ間取り変更済み!

- 円

大阪市西区西本町2丁目

大阪メトロ中央線 阿波座駅 徒歩3分
2011.05.08

- 円

大阪市中央区南久宝寺町4丁目

大阪メトロ御堂筋線 本町駅 徒歩5分
2011.05.08
【堀江2LDK】1460万円改装済み!

- 円

大阪市西区南堀江1丁目

大阪メトロ四つ橋線 なんば駅 徒歩10分
2011.05.08

- 円

大阪市浪速区難波中3丁目

大阪メトロ御堂筋線 なんば駅 徒歩7分
2011.05.07
新婚さんにオススメです。

- 円

大阪市西区立売堀3丁目

大阪メトロ中央線 阿波座駅 徒歩5分
2011.05.07

- 円

大阪市福島区大開3丁目

阪神本線 淀川駅 徒歩3分
2011.05.07

- 円

大阪市西区北堀江1丁目

大阪メトロ四つ橋線 四ツ橋駅 徒歩3分
2011.05.06
『阿波座』は便利です♪

- 円

大阪市西区江之子島1丁目

大阪メトロ千日前線 阿波座駅 徒歩2分