-
大阪 大阪市淀川区 中古一戸建て詳細






















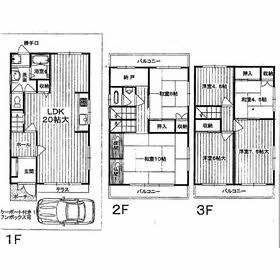
| 所在階数 | - | 方角 | 南向き |
|---|---|---|---|
| 備考 | - | ||
| 所在地 | 大阪府大阪市淀川区三津屋南1丁目 googleマップでみる |
|---|---|
| 交通 | 阪急神戸本線 「神崎川」駅 徒歩 8分 |
| 物件構造 | 鉄骨ALC | 物件階層 | 地上3階建 | 物件種別 | 一戸建て |
|---|---|---|---|---|---|
| 完成年月 | 1981年10月 | 総戸数 | - | 建築条件 | - |
| 建物面積 | -(-) | 土地面積 | 84.68m2(-) | その他面積 | - |
| 健ぺい率 | 60% | 容積率 | 200% | 用途地域 | - |
| 駐車場 | - | ||||
| 物件設備 | 駐車場ベランダ | ||||
| 周辺環境 | - | ||||
| 学校区(小学校) | - | ||||
| 学校区(中学校) | - | ||||
06-6657-7090
所在地:大阪府大阪市住之江区南加賀屋2-8-25セジュール24 1階
アクセス:大阪メトロ住之江公園駅4番出口新なにわ筋を渡ってスグ
似た物件を探したい、最新の物件情報を知りたい、希望の物件条件で見つけて欲しい、などお気軽にお問い合わせ下さい。