-
大阪 堺市堺区 中古アパート詳細






















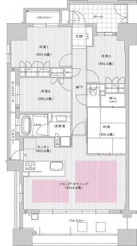
| 所在階数 | - | 方角 | 東南向き |
|---|---|---|---|
| 備考 | - | ||
| 所在地 | 大阪府堺市堺区三国ケ丘御幸通 googleマップでみる |
|---|---|
| 交通 | 南海高野線 「堺東」駅 徒歩 1分 |
| 物件構造 | 鉄筋コンクリート | 物件階層 | 地上15階建 | 物件種別 | アパート |
|---|---|---|---|---|---|
| 完成年月 | 2009年12月 | 総戸数 | 330戸 | 建築条件 | - |
| 建物面積 | -(-) | 土地面積 | -(-) | その他面積 | - |
| 健ぺい率 | - | 容積率 | - | 用途地域 | - |
| 駐車場 | 有 料金:8400 | ||||
| 物件設備 | エレベーターセキュリティシステム防犯カメラオートロック管理人常駐宅配BOX駐車場駐輪場バイク置き場BSCS電話配線LAN配線光ファイバーCATVベランダ | ||||
| 周辺環境 | - | ||||
| 学校区(小学校) | - | ||||
| 学校区(中学校) | - | ||||
06-6657-7090
所在地:大阪府大阪市住之江区南加賀屋2-8-25セジュール24 1階
アクセス:大阪メトロ住之江公園駅4番出口新なにわ筋を渡ってスグ
似た物件を探したい、最新の物件情報を知りたい、希望の物件条件で見つけて欲しい、などお気軽にお問い合わせ下さい。