-
大阪市中央区 本町駅の貸し事務所物件 詳細
この物件情報は【】に作成されたものです。




















| 備考 |
|---|
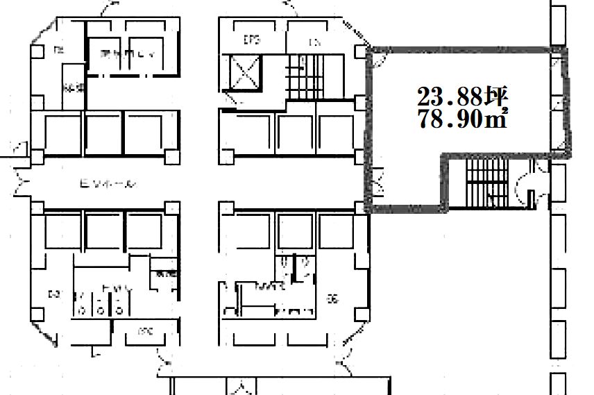
| 所在地 | 大阪市中央区 安土町2 googleマップでみる |
|---|---|
| 交通 | 大阪メトロ御堂筋線 「本町駅」駅徒歩 6分 |
| 物件構造 | 鉄骨鉄筋コンクリート | 物件階層 | 地上32階建 |
|---|---|---|---|
| 物件種別 | 事務所 | 完成年月 | 1973年 |
| 物件設備 | トイレ/共同トイレ/男女別インターネット/光空調個別空調セキュリティ流し台/共同エレベーター OA フロアエアコン24時間利用可ウォッシュレット エレベーター数:12基 |
||
06-6657-7090
所在地:大阪府大阪市住之江区南加賀屋2-8-25セジュール24 1階
アクセス:大阪メトロ住之江公園駅4番出口新なにわ筋を渡ってスグ
似た物件を探したい、最新の物件情報を知りたい、希望の物件条件で見つけて欲しい、などお気軽にお問い合わせ下さい。