¤³¤Îʪ·ï¾ðÊó¤Ï¡Ú¡Û¤ËºîÀ®¤µ¤ì¤¿¤â¤Î¤Ç¤¹¡£
ʪ·ï¾ðÊó
»þÂå¤ÎÀè¤ò¹Ô¤¯¥ª¥Õ¥£¥¹¶õ´Ö¤ò
¸æ¼Ò¤Î¥Ö¥é¥ó¥Ç¥£¥ó¥°¤Î°ìÉô¤Ë¡£
¤³¤ÎÅÙ¡¢¿´ºØ¶¶¤ËÅо줷¤¿
¿·Ãۥǥ¶¥¤¥Ê¡¼¥º¥ª¥Õ¥£¥¹¡£
¤½¤Î¥¯¥ª¥ê¥Æ¥£¤ÏÀµÄ¾¡¢
´ØÀ¾¤Ç¤ÏƬ°ì¤ÄÈ´¤±¤Æ¤¤¤ë¤Î¤Ç¤Ï¡£
¤³¤ì¤Þ¤Ç»ý¤Ã¤Æ¤¤¤¿¥ª¥Õ¥£¥¹¤ÎÄêµÁ¤ä
°ÕÌ£¤òÅɤêÂØ¤¨¤Æ¤¯¤ì¤Þ¤¹¡£
¤¼¤Ò¡¢¤´ÆâÍ÷¤ÇÂ䶤·¤Æ²¼¤µ¤¤¡£
¡¦¡¡¡¦¡¡¡¦¡¡¡¦¡¡¡¦¡¡¡¦¡¡¡¦¡¡¡¦¡¡¡¦
¡¦50.2ÄÚ Ìó166Ö
¡¦ÄÂÎÁ¶¦±×Èñ¹þ¤ß 1,104,400±ß ÀÇÊÌ
¡¦ÄÚñ²Á 22,000±ß
¡¦Å·°æ¹â3,015mm
¡¦OA¥Õ¥í¥¢
¡¦¥¨¥¢¥³¥ó¡õ¾ÈÌÀ ÀßÃֺѤß
¡¦¥¦¥Ã¥É¥Ç¥Ã¥¥Ð¥ë¥³¥Ë¡¼
¡¦1³¬¥é¥¦¥ó¥¸ ¥Õ¥ê¡¼¥³¡¼¥Ò¡¼
¡¦2³¬¥ï¡¼¥¯¥é¥¦¥ó¥¸ ¸Ä¼¼¥Ö¡¼¥¹
¡¦¥ß¡¼¥Æ¥£¥ó¥°¥ë¡¼¥à
¡¦¥ë¡¼¥Õ¥È¥Ã¥×¥Æ¥é¥¹
ñ½ã¤ËÄÂÎÁÁí³Û¡¢ÄÚñ²Á¤À¤±¸«¤ë¤È
¤Á¤ç¤Ã¤È¤É¤¦¤«¤Ê…¤È
»×¤ï¤ì¤ë¤«¤â¤·¤ì¤Þ¤»¤ó¤¬¡¢
¥é¥¦¥ó¥¸¤ä²ñµÄ¼¼¤ò´Þ¤á¤¿
¼Â¼ÁÍøÍѲÄǽÌÌÀѤϡ¢
¡¡99.78ÄÚ 330Ö ¡¡
¡¡¡¡¡á ÄÚñ²Á Ìó11,069±ß
²Ã¤¨¤Æ¡¢¥Ï¥¤¥°¥ì¡¼¥É¥ª¥Õ¥£¥¹¤Î
°ìÈÌŪ¤ÊÀßÄê¤è¤ê³Ê°Â¤ÎÊݾڶ⡣
¤µ¤é¤Ë
¡¡¥»¥¥å¥ê¥Æ¥£´°È÷
¡¡¥Õ¥ê¡¼¥³¡¼¥Ò¡¼
¡¡²°¾å¥Æ¥é¥¹ etc.
¥È¡¼¥¿¥ë¤Ç¤ÎÈñÍÑÂиú²Ì¤Ï¡¢
¤³¤ì¤Þ¤Ç¥Ï¥¤¥°¥ì¡¼¥É¤È
ÌÃÂǤ¿¤ì¤Æ¤¤¤¿Ã±¤Ê¤ë¥ª¥Õ¥£¥¹¤ò
¤Ï¤Ã¤¤ê¤È¾å²ó¤ê¤Þ¤¹¡£
¤³¤ì¤¬¡¢¿´ºØ¶¶±Ø½Ð¸ý¤¹¤°¤Ç
¼Â¸½¤Ç¤¤ë¤È¤¤¤¦¤³¤È¤Ë¡¢
²ÁÃͤò´¶¤¸¤ÆÄº¤±¤ë¤Ç¤·¤ç¤¦¤«¡£
¥»¥Ã¥È¥¢¥Ã¥×¥ª¥Õ¥£¥¹
(¥ª¥Õ¥£¥¹²È¶ñÉÕ¤)¤â
¤´¾Ò²ð²Äǽ¡£
¥µ¡¼¥Ó¥¹¤ÏÊѤï¤ê¤Þ¤»¤ó¡£
¤Á¤ç¤Ã¤ÈÀâÌÀ½¤¯¤Ê¤ê¤Þ¤·¤¿¤¬¡¢
¸«¤ì¤Ð¹û¤ì¤ëʪ·ï¤Ç¤¹¡£
¸æ¼Ò¤Î¤´È¯Å¸¤Î°ì½õ¤Ë
¤¤¤«¤¬¤Ç¤·¤ç¤¦¤«¡£
| À®Ìó¾õ¶· |
 |
| Ä¡¡ÎÁ |
- |
| ´ÉÍýÈñ¡§- |
| Éß¶â¡§-¡ÃÎé¶â¡§- |
| Êݾڶ⡧-¡Ã²òÌó°ú¡§- |
| ÄÚ¡¡¿ô |
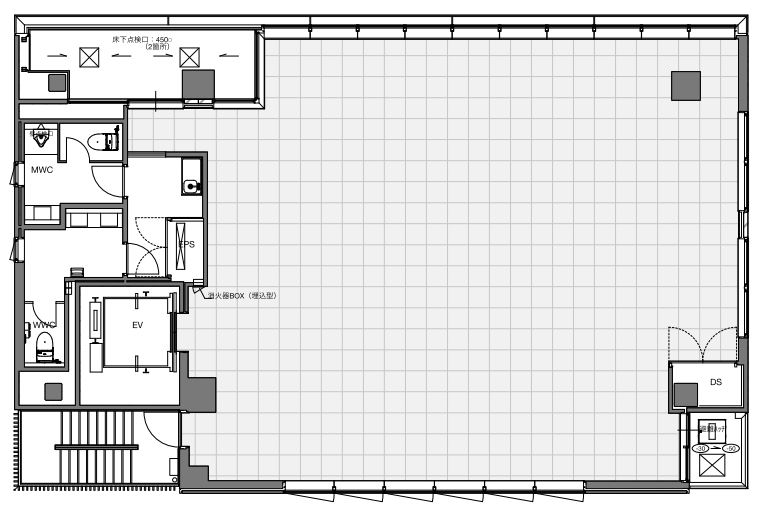
50.2ÄÚ¡¡ÀìÍÌÌÀÑ¡§166.24m2 |
ʪ·ï´ðËܾðÊó
| ½êºßÃÏ | Âçºå»ÔÃæ±û¶è À¾¿´ºØ¶¶1 google¥Þ¥Ã¥×¤Ç¤ß¤ë |
| ¸òÄÌ | Âçºå¥á¥È¥í¸æÆ²¶ÚÀþ ¡Ö¿´ºØ¶¶±Ø¡×±ØÅÌÊâ 3ʬ |
| ʪ·ï¹½Â¤ | Å´¹üALC |
ʪ·ï³¬ÁØ | ÃϾå9³¬·ú |
| ʪ·ï¼ïÊÌ | »ö̳½ê |
´°À®Ç¯·î | 2020ǯ12·î |
| ʪ·ïÀßÈ÷ | ¥È¥¤¥ì/ÀìÍѥȥ¤¥ì/Ã˽÷ÊÌŽ²ŽÝŽÀްŽÈޝŽÄ/¸÷µëÅò¼¼/ÀìÍѶõÄ´¸ÄÊ̶õÄ´¥»¥¥å¥ê¥Æ¥££±¥Õ¥í¥¢°ì¸ÍÂß²ñµÄ¼¼¥ê¥Õ¥ì¥Ã¥·¥å¥³¡¼¥Ê¡¼¥¨¥ì¥Ù¡¼¥¿¡¼ OA ¥Õ¥í¥¢¥¨¥¢¥³¥ó£²£´»þ´ÖÍøÍѲĥ¦¥©¥Ã¥·¥å¥ì¥Ã¥ÈÄí±àÉÕ¤¥ª¡¼¥È¥í¥Ã¥¯ ¥¨¥ì¥Ù¡¼¥¿¡¼¿ô¡§1´ð |
ôÅöŹÊÞ
BRUNOÉÔÆ°»º³ô¼°²ñ¼Ò ¥¨¥¤¥Ö¥ë¥Í¥Ã¥È¥ï¡¼¥¯Èî¸å¶¶¤¦¤Ä¤Ü¸ø±àÁ°Å¹
06-6459-4555
½êºßÃÏ¡§Âçºå»ÔÀ¾¶èµþÄ®ËÙ1-10-21
¥¢¥¯¥»¥¹¡§Ãϲ¼Å´»Í¥Ä¶¶Àþ Èî¸å¶¶±Ø7Èֽиý¤è¤êÆîÀ¾¤ØÅÌÊâ3ʬ
BRUNOÉÔÆ°»º³ô¼°²ñ¼Ò ¥¨¥¤¥Ö¥ë¥Í¥Ã¥È¥ï¡¼¥¯½»Ç·¹¾¸ø±àŹ
06-6657-7090
½êºßÃÏ¡§ÂçºåÉÜÂçºå»Ô½»Ç·¹¾¶èÆî²Ã²ì²°2-8-25¥»¥¸¥å¡¼¥ë24 1³¬
¥¢¥¯¥»¥¹¡§Âçºå¥á¥È¥í½»Ç·¹¾¸ø±à±Ø4Èֽиý¿·¤Ê¤Ë¤ï¶Ú¤òÅϤäƥ¹¥°
BRUNOÉÔÆ°»º³ô¼°²ñ¼Ò ¥¨¥¤¥Ö¥ë¥Í¥Ã¥È¥ï¡¼¥¯Ì§ÌÌŹ
072-737-6699
½êºßÃÏ¡§ÂçºåÉÜ̧ÌÌ»Ô̧ÌÌ1-9-21
¥¢¥¯¥»¥¹¡§ºåµÞ̧Ì̱ؤè¤êÅì¤ØÅÌÊâ2ʬ¡ª±ØÁ°¥í¡¼¥¿¥ê¡¼¤è¤ê¥¹¥°ÌܤÎÁ°¡ª
»÷¤¿Êª·ï¤òõ¤·¤¿¤¤¡¢ºÇ¿·¤Îʪ·ï¾ðÊó¤òÃΤꤿ¤¤¡¢´õ˾¤Îʪ·ï¾ò·ï¤Ç¸«¤Ä¤±¤ÆÍߤ·¤¤¡¢¤Ê¤É¤ªµ¤·Ú¤Ë¤ªÌ䤤¹ç¤ï¤»²¼¤µ¤¤¡£