-
Âçºå»ÔÃæ±û¶è ËÜÄ®±Ø¤ÎÂߤ·»ö̳½êʪ·ï ¾ÜºÙ
¤³¤Îʪ·ï¾ðÊó¤Ï¡Ú¡Û¤ËºîÀ®¤µ¤ì¤¿¤â¤Î¤Ç¤¹¡£




















| È÷¹Í |
|---|
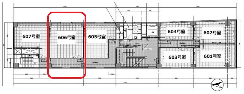
| ½êºßÃÏ | Âçºå»ÔÃæ±û¶è È÷¸åÄ®3 google¥Þ¥Ã¥×¤Ç¤ß¤ë |
|---|---|
| ¸òÄÌ | Âçºå¥á¥È¥í¸æÆ²¶ÚÀþ ¡ÖËÜÄ®±Ø¡×±ØÅÌÊâ 3ʬ |
| ʪ·ï¹½Â¤ | Å´¶ÚŽºŽÝޏިްŽÄ | ʪ·ï³¬ÁØ | ÃϾå6³¬·ú |
|---|---|---|---|
| ʪ·ï¼ïÊÌ | »ö̳½ê | ´°À®Ç¯·î | 1965ǯ |
| ʪ·ïÀßÈ÷ | ¥È¥¤¥ì/¶¦Æ±µëÅò¼¼/¶¦Æ±¥¨¥ì¥Ù¡¼¥¿¡¼ ¥¨¥ì¥Ù¡¼¥¿¡¼¿ô¡§1´ð |
||
06-6459-4555
½êºßÃÏ¡§Âçºå»ÔÀ¾¶èµþÄ®ËÙ1-10-21
¥¢¥¯¥»¥¹¡§Ãϲ¼Å´»Í¥Ä¶¶Àþ Èî¸å¶¶±Ø7Èֽиý¤è¤êÆîÀ¾¤ØÅÌÊâ3ʬ
06-6657-7090
½êºßÃÏ¡§ÂçºåÉÜÂçºå»Ô½»Ç·¹¾¶èÆî²Ã²ì²°2-8-25¥»¥¸¥å¡¼¥ë24 1³¬
¥¢¥¯¥»¥¹¡§Âçºå¥á¥È¥í½»Ç·¹¾¸ø±à±Ø4Èֽиý¿·¤Ê¤Ë¤ï¶Ú¤òÅϤäƥ¹¥°
»÷¤¿Êª·ï¤òõ¤·¤¿¤¤¡¢ºÇ¿·¤Îʪ·ï¾ðÊó¤òÃΤꤿ¤¤¡¢´õ˾¤Îʪ·ï¾ò·ï¤Ç¸«¤Ä¤±¤ÆÍߤ·¤¤¡¢¤Ê¤É¤ªµ¤·Ú¤Ë¤ªÌ䤤¹ç¤ï¤»²¼¤µ¤¤¡£