-
Âçºå»ÔÊ¡Åç¶è À¾¶å¾ò±Ø¤ÎÂߤ·»ö̳½êʪ·ï ¾ÜºÙ
¤³¤Îʪ·ï¾ðÊó¤Ï¡Ú¡Û¤ËºîÀ®¤µ¤ì¤¿¤â¤Î¤Ç¤¹¡£




















| À®Ìó¾õ¶· | |
|---|---|
| Ä¡¡ÎÁ | - |
| ´ÉÍýÈñ¡§- | |
| Éß¶â¡§-¡ÃÎé¶â¡§- | |
| Êݾڶ⡧-¡Ã²òÌó°ú¡§- | |
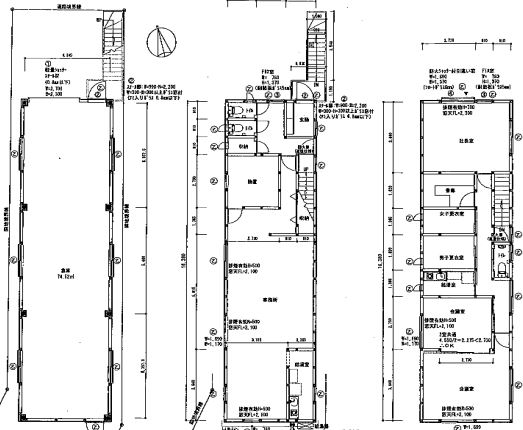
| ÄÚ¡¡¿ô | 67.62ÄÚ¡¡ÀìÍÌÌÀÑ¡§223.54m2 |
| È÷¹Í |
|---|
| ½êºßÃÏ | Âçºå»ÔÊ¡Åç¶è µÈÌî5 google¥Þ¥Ã¥×¤Ç¤ß¤ë |
|---|---|
| ¸òÄÌ | JRÂçºå´Ä¾õÀþ ¡ÖÀ¾¶å¾ò±Ø¡×±ØÅÌÊâ 8ʬ |
| ʪ·ï¹½Â¤ | ÌÚ¤ | ʪ·ï³¬ÁØ | ÃϾå3³¬·ú |
|---|---|---|---|
| ʪ·ï¼ïÊÌ | »ö̳½ê | ´°À®Ç¯·î | 2020ǯ1·î |
| ʪ·ïÀßÈ÷ | ¥È¥¤¥ì/ÀìÍѥȥ¤¥ì/Ã˽÷Ê̵ëÅò¼¼/ÀìÍѶõÄ´¸ÄÊ̶õĴή¤·Âæ/ÀìÍÑÃóÎØ¾ì¥Ð¥¤¥¯ÃÖ¤¾ì¥¨¥ì¥Ù¡¼¥¿¡¼¤Ê¤·¥¨¥¢¥³¥ó£²£´»þ´ÖÍøÍѲĥ¦¥©¥Ã¥·¥å¥ì¥Ã¥È ¡Ý | ||
06-6459-4555
½êºßÃÏ¡§Âçºå»ÔÀ¾¶èµþÄ®ËÙ1-10-21
¥¢¥¯¥»¥¹¡§Ãϲ¼Å´»Í¥Ä¶¶Àþ Èî¸å¶¶±Ø7Èֽиý¤è¤êÆîÀ¾¤ØÅÌÊâ3ʬ
06-6657-7090
½êºßÃÏ¡§ÂçºåÉÜÂçºå»Ô½»Ç·¹¾¶èÆî²Ã²ì²°2-8-25¥»¥¸¥å¡¼¥ë24 1³¬
¥¢¥¯¥»¥¹¡§Âçºå¥á¥È¥í½»Ç·¹¾¸ø±à±Ø4Èֽиý¿·¤Ê¤Ë¤ï¶Ú¤òÅϤäƥ¹¥°
»÷¤¿Êª·ï¤òõ¤·¤¿¤¤¡¢ºÇ¿·¤Îʪ·ï¾ðÊó¤òÃΤꤿ¤¤¡¢´õ˾¤Îʪ·ï¾ò·ï¤Ç¸«¤Ä¤±¤ÆÍߤ·¤¤¡¢¤Ê¤É¤ªµ¤·Ú¤Ë¤ªÌ䤤¹ç¤ï¤»²¼¤µ¤¤¡£