物件お気に入りボタン

物件マニア

大阪で個性的な店舗をお探しなら、物件マニア貸店舗で!

大阪地域に強い物件マニアではお客様のお店探しを手厚くサポート!

運営会社Urban Ground 株式会社
取扱店舗エイブルNWうつぼ公園前店
エイブルNW住之江公園店
貸店舗物件に関するご相談・内覧は無料です!
物件マニアとは?

カテゴリーで探す

  • 軽飲食(カフェなど)
  • 重飲食(飲み屋など)
  • アパレル系
  • エステ・サロン
  • 理容室・美容室
  • クリニック
  • 物販系
  • バー
  • クラブ・ライブハウス
  • 倉庫物件
  • 駅チカ
  • スクール(塾・教室など)
  • 一棟貸し
  • 路面店舗
  • 居抜き物件

どうしたらいいか
分からない!
是非当店へご相談を!

お問い合わせ

大阪のタワーマンション特集!北区、西区、中央区、福島区、浪速区等の人気エリア!BRUNOタワーマンションcom
大阪市内の分譲マンションは賃貸も管理も売買も「BRUNO不動産の大阪 分譲マンションcom」へ!

重飲食 (焼肉/焼き鳥/中華) 物件一覧

条件を指定して検索
エリア
賃料
から
まで
面積
から
まで
並び順

1560件中 925〜936件を表示しています。  

大阪市中央区 谷町六丁目の店舗・テナント賃貸の画像
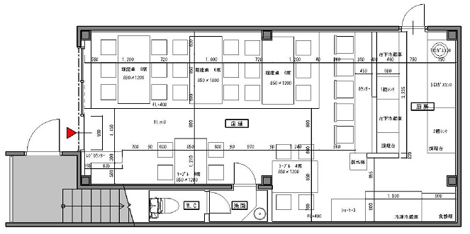
大阪市中央区 谷町六丁目の店舗・テナント賃貸の間取り画像

古民家再生店舗

共:-

27.8坪(-㎡)

大阪市中央区 安堂寺町2

大阪メトロ谷町線

「谷町六丁目」徒歩2分

>> 物件詳細を見る

大阪市北区 肥後橋の店舗・テナント賃貸の画像
大阪市北区 肥後橋の店舗・テナント賃貸の間取り画像

中之島リバーサイド

共:-

70坪(-㎡)

大阪市北区 中之島3

大阪メトロ四つ橋線

「肥後橋」徒歩5分

>> 物件詳細を見る

大阪市中央区 なんばの店舗・テナント賃貸の画像
大阪市中央区 なんばの店舗・テナント賃貸の間取り画像

アメ村路面店舗!57坪!

共:-

57.89坪(191.4㎡)

大阪市中央区 西心斎橋2

大阪メトロ御堂筋線

「なんば」徒歩5分

>> 物件詳細を見る

店舗開業などのお役立ち情報

契約書関連の
ポイント
店舗開業までの
流れ
大阪の店舗開業準備

独立開業の準備

店舗の開業マニュアル

開業マニュアル

店舗開業の資金シミュレーション

資金シミュレーション

店舗開業などの不動産用語集

不動産用語集

賃貸に関するQandA

Q&A