物件マニア
大阪地域に強い物件マニアではお客様のお店探しを手厚くサポート!
物件リクエスト
Request
物件一覧
Sores!
役立ちコラム
Useful Info
店舗情報
Shop Info
お問い合わせ
Contact
どうしたらいいか分からない!是非当店へご相談を!
600件中 73〜84件を表示しています。
【南堀江抜群ロケーションの路面店舗】堀江 路面 居..
共:-
23.59坪(-㎡)
大阪市西区 南堀江1
大阪メトロ四つ橋線
「四ツ橋」徒歩2分
>> 物件詳細を見る
オレンジストリート沿い 1階路面店舗 ショールーム..
58坪(191.34㎡)
大阪市西区 南堀江2
大阪メトロ長堀鶴見緑地線
「西大橋」徒歩8分
道路面サインOK 2階 駅近 堀江
29坪(95.86㎡)
大阪市西区 北堀江1
「四ツ橋」徒歩3分
道路面サインOK 2階ワンフロア 駅近 堀江
61.5坪(203.3㎡)
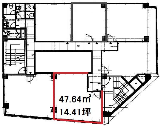
堀江のランドマーク 大通り角地
14.41坪(47.64㎡)
「四ツ橋」徒歩7分
【堀江にて視認性抜群テナント区画の募集】堀江 角地..
54.38坪(-㎡)
「四ツ橋」徒歩4分
【堀江の路面店舗】堀江 路面 物販 アパレル 販売..
17.12坪(-㎡)
【駅前ドリンク販売店居抜き】堀江 西大橋 駅前 路..
13.36坪(-㎡)
「西大橋」徒歩0分
【人気ロケーション堀江路面店舗】堀江 路面 飲食 ..
27坪(-㎡)
美容室居抜き 北堀江1丁目
50坪(165㎡)
「四ツ橋」徒歩1分
【堀江路面店舗居抜き物件】堀江 アパレル カフェ ..
35.72坪(117.88㎡)
【北堀江1】専用テラスがある、フル・リノべ未入居 ..
13.47坪(44.55㎡)
独立開業の準備
開業マニュアル
資金シミュレーション
不動産用語集
Q&A