物件マニア
大阪地域に強い物件マニアではお客様のお店探しを手厚くサポート!
物件リクエスト
Request
物件一覧
Sores!
役立ちコラム
Useful Info
店舗情報
Shop Info
お問い合わせ
Contact
どうしたらいいか分からない!是非当店へご相談を!
884件中 157〜168件を表示しています。
南船場デザイナーズビル1階★路面店!駅徒歩一分!
共:-
16坪(52.91㎡)
大阪市中央区 南船場1
大阪メトロ堺筋線
「堺筋本町」徒歩1分
>> 物件詳細を見る
南船場の隠れたデザインルーム
20.26坪(66.99㎡)
大阪市中央区 南船場4
大阪メトロ御堂筋線
「心斎橋」徒歩5分
ミナミの美装バー居抜き物件。
15.5坪(-㎡)
大阪市中央区 東心斎橋2
「心斎橋」徒歩7分
心斎橋商店街エリア路面店
18.3坪(-㎡)
大阪市中央区 南船場3
南船場4丁目 路面店舗 63.34坪
63.34坪(209.38㎡)
「心斎橋」徒歩2分
ミナミのスナック・バー居抜き物件
9.67坪(-㎡)
【条件変更で格安条件!心斎橋駅徒歩1分!】心斎橋 ..
23.03坪(-㎡)
「心斎橋」徒歩1分
【心斎橋商店街路面店舗】抜群立地 居抜物件 物販 ..
13.44坪(44.37㎡)
大阪ミナミのバー居抜き物件
7坪(-㎡)
大阪市中央区 東心斎橋1
南船場エリアのデザイナーズビル。募集中。
23.22坪(76.77㎡)
大阪メトロ長堀鶴見緑地線
「長堀橋」徒歩5分
超目玉物件登場!!【アメ村】一等地 5階ワンフロア..
15.43坪(51.03㎡)
大阪市中央区 西心斎橋2
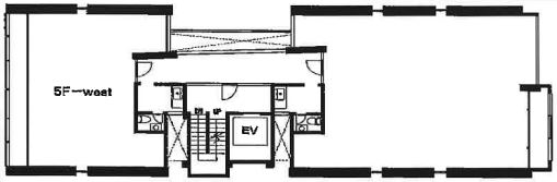
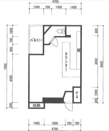
【退去予定情報!南船場デザイナーズビル】心斎橋 駅..
20.05坪(66.28㎡)
「心斎橋」徒歩4分
独立開業の準備
開業マニュアル
資金シミュレーション
不動産用語集
Q&A