物件マニア
大阪地域に強い物件マニアではお客様のお店探しを手厚くサポート!
物件リクエスト
Request
物件一覧
Sores!
役立ちコラム
Useful Info
店舗情報
Shop Info
お問い合わせ
Contact
どうしたらいいか分からない!是非当店へご相談を!
332件中 133〜144件を表示しています。
【日本橋 希少な一棟貨】日本橋 一棟貨 飲食 民泊..
共:-
55坪(-㎡)
大阪市浪速区 日本橋4
大阪メトロ堺筋線
「日本橋」徒歩9分
>> 物件詳細を見る
なんばエリア 新築 1棟貸し店舗 2018年夏完成..
138.63坪(458.3㎡)
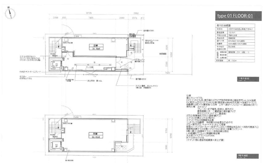
大阪市中央区 西心斎橋2
大阪メトロ四つ橋線
「なんば」徒歩3分
9.28坪(30.62㎡)
宗右衛門町 バー 居抜き
9坪(-㎡)
大阪市中央区 宗右衛門町
大阪メトロ御堂筋線
「なんば」徒歩8分
JR難波すぐの地下ワンフロア
28.5坪(-㎡)
大阪市浪速区 稲荷1
JR関西本線
「JR難波」徒歩3分
【宗右衛門町の隠れ家】ミナミ 宗右衛門町 バー ラ..
27.93坪(-㎡)
「なんば」徒歩5分
【立地最高クラス!なんば一棟貨し】なんば 路面 一..
77.08坪(-㎡)
大阪市中央区 難波千日前
【なんばウォーク直結の路面店舗】なんば 千日前 商..
41.46坪(-㎡)
大阪市中央区 難波1
「なんば」徒歩1分
【抜群立地の地下店舗】なんば 御堂筋沿い 地下 飲..
33.29坪(-㎡)
大阪市中央区 難波4
「なんば」徒歩2分
人気リノベシリーズが難波に!
30.9坪(102㎡)
大阪市浪速区 難波中1
【ミナミ】立地=◎ バー居抜き店舗
9.5坪(31.4㎡)
大阪市中央区 心斎橋筋2
【ミナミ】立地=◎ スナック居抜き店舗
独立開業の準備
開業マニュアル
資金シミュレーション
不動産用語集
Q&A