物件マニア
大阪地域に強い物件マニアではお客様のお店探しを手厚くサポート!
物件リクエスト
Request
物件一覧
Sores!
役立ちコラム
Useful Info
店舗情報
Shop Info
お問い合わせ
Contact
どうしたらいいか分からない!是非当店へご相談を!
250件中 61〜72件を表示しています。
堂島2丁目 エステ・ネイル相談可 店舗事務所
共:-
14.39坪(47.48㎡)
大阪市北区 堂島2
大阪メトロ四つ橋線
「西梅田」徒歩3分
>> 物件詳細を見る
曾根崎新地2丁目2号線沿いの地下1階!
36.92坪(122.04㎡)
大阪市北区 曽根崎新地2
「西梅田」徒歩4分
北区 四ツ橋筋沿い 堂島2丁目 飲食店舗
40坪(120㎡)
西梅田 桜橋交差点直ぐ店舗事務所
33.33坪(110㎡)
「西梅田」徒歩2分
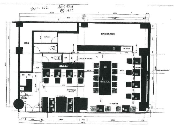
北区堂島 居酒屋居抜き 店舗 スケルトン
62坪(203㎡)
JR東西線
「北新地」徒歩2分
【北新地路面居抜き】北新地 路面 居抜き 飲食
47.87坪(158㎡)
大阪市北区 堂島浜1
「北新地」徒歩10分
【北新地㊙居抜き】路面 大通り沿い ..
107.84坪(-㎡)
大阪市北区 西天満4
「北新地」徒歩4分
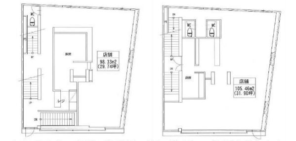
107.53坪(-㎡)
大阪市北区 アメリカ総領事館直ぐの路面店
34.97坪(115.61㎡)
大阪市北区 西天満2
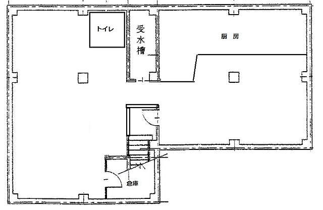
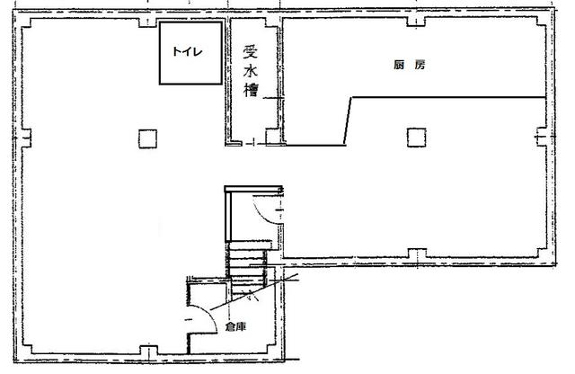
北新地 飲食居抜き店舗 専用階段付き
40.27坪(-㎡)
大阪市北区 曽根崎新地1
「北新地」徒歩1分
四ツ橋筋に面す地下1階居酒屋居抜き!
40坪(122㎡)
独立開業の準備
開業マニュアル
資金シミュレーション
不動産用語集
Q&A