物件マニア
大阪地域に強い物件マニアではお客様のお店探しを手厚くサポート!
物件リクエスト
Request
物件一覧
Sores!
役立ちコラム
Useful Info
店舗情報
Shop Info
お問い合わせ
Contact
どうしたらいいか分からない!是非当店へご相談を!
489件中 277〜288件を表示しています。
希少☆福島路地裏の住居付店舗
共:-
45.38坪(149.76㎡)
大阪市福島区 福島2
JR大阪環状線
「福島」徒歩5分
>> 物件詳細を見る
茨木駅 飲食居抜き店舗 住居付き店舗 一棟貸し
25坪(-㎡)
茨木市 春日1
JR京都線
「茨木」徒歩5分
天六 隠れ家 古民家店舗
37.5坪(-㎡)
大阪市北区 天神橋6
大阪メトロ谷町線
「天神橋筋六丁目」徒歩2分
天王寺 目の前 1階路面店舗
18.63坪(-㎡)
大阪市西成区 山王1
大阪メトロ御堂筋線
「天王寺」徒歩7分
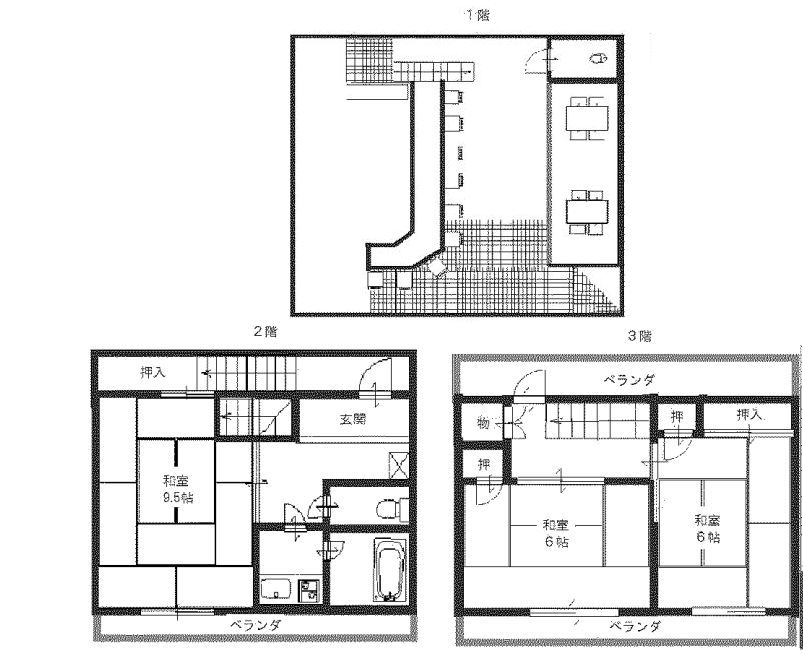
屋上付き!住居付店舗の一棟貸!
27.08坪(89.54㎡)
大阪市北区 兎我野町
「東梅田」徒歩5分
駅徒歩1分の焼肉店居抜き!業種相談OK!
21.98坪(72.54㎡)
大阪市此花区 西九条1
「西九条」徒歩1分
大阪市 西区 靭本町 飲食一棟貸し
41.5坪(-㎡)
大阪市西区 靱本町3
大阪メトロ千日前線
「阿波座」徒歩2分
大阪市西区靭本町 本町通り 一棟貸し
41坪(-㎡)
大阪市西区 靱本町2
25号線沿い 1棟貸し店舗 フィットネス 駐車場付..
231坪(764㎡)
大阪市平野区 平野上町1
JR関西本線
「平野」徒歩5分
希少福島戸建店舗!
23.84坪(78.68㎡)
大阪市福島区 福島3
JR東西線
「新福島」徒歩3分
大阪市 古民家 京風町 店舗
31坪(-㎡)
大阪市北区 浮田1
大阪メトロ堺筋線
「天神橋筋六丁目」徒歩3分
帝塚山で町屋に住んで店舗しませんか?
17.16坪(56.76㎡)
大阪市住吉区 帝塚山西4
南海本線
「粉浜」徒歩3分
独立開業の準備
開業マニュアル
資金シミュレーション
不動産用語集
Q&A