物件お気に入りボタン

物件マニア

大阪で個性的な店舗をお探しなら、物件マニア貸店舗で!

大阪地域に強い物件マニアではお客様のお店探しを手厚くサポート!

運営会社Urban Ground 株式会社
取扱店舗エイブルNWうつぼ公園前店
エイブルNW住之江公園店
貸店舗物件に関するご相談・内覧は無料です!
物件マニアとは?

カテゴリーで探す

  • 軽飲食(カフェなど)
  • 重飲食(飲み屋など)
  • アパレル系
  • エステ・サロン
  • 理容室・美容室
  • クリニック
  • 物販系
  • バー
  • クラブ・ライブハウス
  • 倉庫物件
  • 駅チカ
  • スクール(塾・教室など)
  • 一棟貸し
  • 路面店舗
  • 居抜き物件

どうしたらいいか
分からない!
是非当店へご相談を!

お問い合わせ

大阪のタワーマンション特集!北区、西区、中央区、福島区、浪速区等の人気エリア!BRUNOタワーマンションcom
大阪市内の分譲マンションは賃貸も管理も売買も「BRUNO不動産の大阪 分譲マンションcom」へ!

スクール (塾/教室) 物件一覧

条件を指定して検索
エリア
賃料
から
まで
面積
から
まで
並び順

3172件中 709〜720件を表示しています。  

大阪市西区 本町の店舗・テナント賃貸の画像
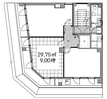
大阪市西区 本町の店舗・テナント賃貸の間取り画像

靱公園 デザインリノベ

共:-

9坪(29.75㎡)

大阪市西区 靱本町1

大阪メトロ四つ橋線

「本町」徒歩4分

>> 物件詳細を見る

大阪市西区 四ツ橋の店舗・テナント賃貸の画像
大阪市西区 四ツ橋の店舗・テナント賃貸の間取り画像

堀江の路面店

共:-

13.6坪(45㎡)

大阪市西区 北堀江1

大阪メトロ四つ橋線

「四ツ橋」徒歩3分

>> 物件詳細を見る

店舗開業などのお役立ち情報

契約書関連の
ポイント
店舗開業までの
流れ
大阪の店舗開業準備

独立開業の準備

店舗の開業マニュアル

開業マニュアル

店舗開業の資金シミュレーション

資金シミュレーション

店舗開業などの不動産用語集

不動産用語集

賃貸に関するQandA

Q&A