物件マニア
大阪地域に強い物件マニアではお客様のお店探しを手厚くサポート!
物件リクエスト
Request
物件一覧
Sores!
役立ちコラム
Useful Info
店舗情報
Shop Info
お問い合わせ
Contact
どうしたらいいか分からない!是非当店へご相談を!
3435件中 325〜336件を表示しています。
堀江 セットバックした路面店舗
共:-
28.23坪(93.35㎡)
大阪市西区 北堀江1
大阪メトロ四つ橋線
「四ツ橋」徒歩6分
>> 物件詳細を見る
東天満2丁目 1階テナント 駐車場セット契約!!
44坪(146.25㎡)
大阪市北区 東天満2
大阪メトロ谷町線
「南森町」徒歩5分
【天満橋】駅徒歩すぐ!!人気ラーメン店居抜き物件
9坪(-㎡)
大阪市中央区 釣鐘町1
「天満橋」徒歩3分
南船場で一棟貸し 90坪弱でこの賃料
88.9坪(294.02㎡)
大阪市中央区 南船場4
大阪メトロ御堂筋線
「心斎橋」徒歩5分
天高3430! 公園横1階路面 駐車可
29.64坪(98㎡)
大阪市中央区 糸屋町1
「天満橋」徒歩7分
北浜の隠れ家 路面 居抜
8.6坪(28.42㎡)
大阪市中央区 今橋2
大阪メトロ堺筋線
「北浜」徒歩2分
東梅田で29坪 デザイナーズビル
29.15坪(96.39㎡)
大阪市北区 曽根崎2
「東梅田」徒歩4分
JR福島駅すぐ飲食店舗居抜き物件 造作譲渡代無し!..
27.7坪(91.58㎡)
大阪市福島区 福島7
JR大阪環状線
「福島」徒歩6分
難波中3丁目1棟貸ビル
52.68坪(173.85㎡)
大阪市浪速区 難波中3
「大国町」徒歩4分
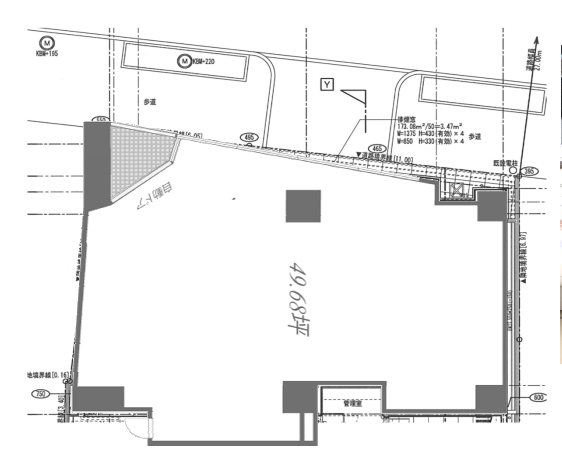
玉造駅 徒歩1分 【長堀通沿い 間口16メートル】..
49.68坪(164.24㎡)
大阪市天王寺区 玉造本町
大阪メトロ長堀鶴見緑地線
「玉造」徒歩1分
福島駅近く、国道2号線に面する1棟店舗。
30坪(99.19㎡)
大阪市福島区 福島5
阪神本線
「福島」徒歩1分
美容室居抜き物件 藤井寺駅 駅前テナント 2階
130.72坪(-㎡)
藤井寺市 春日丘1
近鉄南大阪線
「藤井寺」徒歩1分
独立開業の準備
開業マニュアル
資金シミュレーション
不動産用語集
Q&A