物件マニア
大阪地域に強い物件マニアではお客様のお店探しを手厚くサポート!
物件リクエスト
Request
物件一覧
Sores!
役立ちコラム
Useful Info
店舗情報
Shop Info
お問い合わせ
Contact
どうしたらいいか分からない!是非当店へご相談を!
3435件中 421〜432件を表示しています。
大通りに面する1階店舗 居抜き
共:-
5.87坪(19.37㎡)
大阪市中央区 東高麗橋
大阪メトロ堺筋線
「北浜」徒歩6分
>> 物件詳細を見る
新築ホテルの1階店舗部分 募集開始!
24.24坪(80㎡)
大阪市中央区 千日前1
大阪メトロ千日前線
「日本橋」徒歩2分
【南船場4】 心斎橋から徒歩5分の1階奥店舗 ※路..
8.23坪(27.21㎡)
大阪市中央区 南船場4
大阪メトロ御堂筋線
「心斎橋」徒歩5分
【本町】3分 ワンフロア貸し=23坪 店舗・事務所
23.69坪(78.35㎡)
大阪市中央区 瓦町4
「本町」徒歩3分
物販、美容室、整体むきの路面店!@福島
16.5坪(54.52㎡)
大阪市福島区 福島1
JR大阪環状線
「福島」徒歩5分
メゾ×無垢フロ×テラス 事務所 店舗
14.33坪(47.37㎡)
「心斎橋」徒歩4分
美容室さん 各種サロンさんに最適 角地物件
12.7坪(42.61㎡)
大阪市北区 本庄東2
大阪メトロ谷町線
「天神橋筋六丁目」徒歩6分
森ノ宮駅と緑橋駅近くの1階 路面店 重飲食可
15.15坪(50㎡)
大阪市東成区 中本2
大阪メトロ中央線
「緑橋」徒歩4分
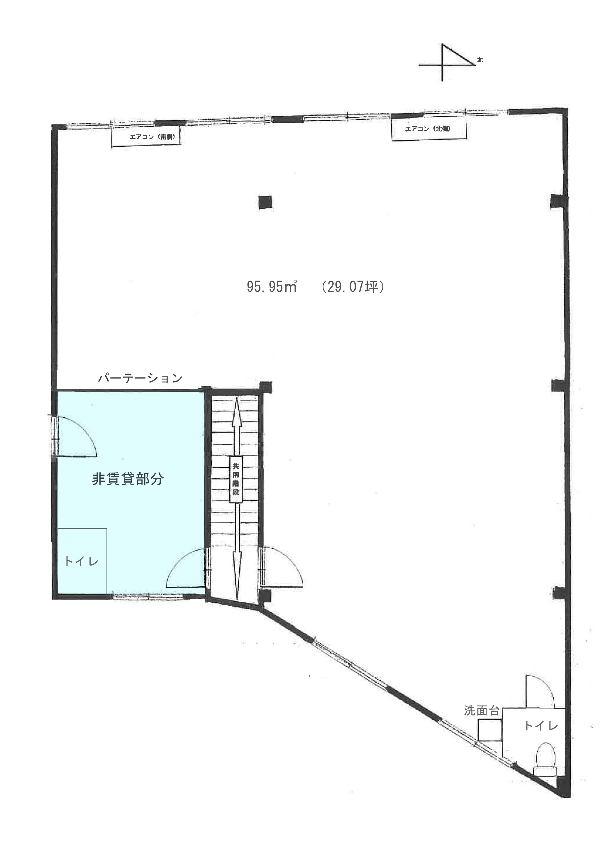
スクール業種にもってこい!業種相談@真田山エリア
29.07坪(95.95㎡)
大阪市天王寺区 餌差町
大阪メトロ長堀鶴見緑地線
「玉造」徒歩3分
南本町 新築店舗物件 もうすぐ完成!
11.32坪(37.35㎡)
大阪市中央区 南本町2
「堺筋本町」徒歩1分
13.09坪(43.19㎡)
24.41坪(80.55㎡)
独立開業の準備
開業マニュアル
資金シミュレーション
不動産用語集
Q&A