大阪[賃貸物件]ブログ記事の詳細
「物件マニア大阪版」では過去にもこだわりの効いた様々なお部屋をご紹介しております!
似た条件の物件をお探しの場合は、ご紹介させて頂きますので、お気軽にお問い合せください。
お洒落×デザイナーズ!ペットと暮らせる部屋
賃 料
- 共益費:-
敷金/礼金:-/-
保証金/解約引:-/-
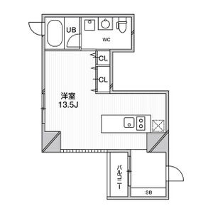
間取り
1R 専有面積:34.34 ㎡
間取り画像をクリックしている間、拡大画像が表示されます。
基本情報
| 所在地 | |
|---|---|
| 大阪府大阪市中央区久太郎町1丁目 | |
| アクセス | |
| 大阪メトロ中央線 堺筋本町駅 徒歩1分 | |
| 物件種別 | マンション |
| 構 造 | |
| 完 成 | |
| 階 層 | 地上14階建 |
| 駐車場 | 空無 |
| 駐輪場 | 有 |
| バイク置場 | 有 |
| 物件設備 | |
| 宅配ボックス、駐輪場あり、バイク置き場あり、デザイナーズ、照明器具付き、水道(公営)、ガス(プロパン)、排水(下水)、エレベータ有、防犯カメラ、オートロック、TVドアホン | |
| 生活施設 | |
| ショッピングセンター:船場センタービルまで74m | |
部屋情報
| 階 数 | 9階 |
|---|---|
| 方 角 | 東向き |
| 部屋設備 | |
| ウォークインクローゼット、CSアンテナ、BSアンテナ、クローゼット、エアコン、室内洗濯機置き場、バルコニー、フローリング、システムキッチン、追焚機能、シャワー付洗面化粧台、温水洗浄便座、浴室乾燥機、洗面所独立、オートバス、バス専用、バス・トイレ別、シャワー、ガスコンロ、コンロ(三口) | |
| 備 考 | |
| デザイナーズ | |
この記事の担当店舗
似た条件でお探しの場合、担当店舗へお電話いただくか、以下の「希望条件リクエスト」よりメールでリクエスト頂けましたら、条件に合った物件をご紹介させて頂きます。 お電話の際は、サイト名と記事番号をお伝えいただくとスムーズです。
| サイト名 | 物件マニア賃貸売買版 [大阪] |
|---|---|
| 記事番号 | b11121 |
BRUNO不動産株式会社
エイブルネットワーク肥後橋うつぼ公園前店
06-6459-4555
| 所在地 | 大阪市西区京町堀1-10-21 |
|---|---|
| アクセス | 地下鉄四ツ橋線 肥後橋駅7番出口より南西へ徒歩3分 |
店舗マップを確認
ボタンをクリックしている間、マップが表示されます。
Y







今回ご紹介するのは、大阪市中央区東心斎橋にあるマンションの1部屋。
ブルータイルとホワイトのお洒落デザイナーズワンルームです。
最寄りは、大阪メトロ中央線/堺筋線「堺筋本町駅」徒歩1分と駅近!
その他、
大阪メトロ長堀鶴見緑地線「松屋町駅」徒歩8分
大阪メトロ長堀鶴見緑地線「長堀橋駅」徒歩9分
大阪メトロ四つ橋線「本町駅」徒歩13分
大阪メトロ谷町線「谷町四丁目駅」徒歩11分
京阪本線「北浜駅」徒歩12分
と、少し離れているものの複数路線利用できる便利な立地になっています。
梅田や難波へのアクセスも良好!
マンションの隣には、コンビニ!
駅周辺にはコンビニが複数店舗あるので、
コンビニ別の買いわけもできちゃいます◎
すぐ近くには、
スーパーもあり、日用品・食料品の買い出しも困らなさそうです。
2006年11月築の14階建てマンション。
ブラックとコンクリ打ちっ放しで、かっこいい外観です。
ブラックタイル風な壁がかっこいいシックなエントランスです。
間接照明もあり、お洒落な空間になっています。
エントランスは、オートロック仕様なので、セキュリティ面でも安心です◎
エントランスホールは、真っ赤な壁がポイント。
ブラックでシック&スタイリッシュなデザインの中に良いアクセントになっています。
広々したエントランスホールです。
エントランスホールには、
石が敷き詰められライトアップされた
お洒落なエリアもあります!
広めのエレベーターホール。
また、写真はありませんが、
集合ポストだけでなく、宅配ボックス・駐輪場・バイク置き場もあります!
早速、玄関から見ていきます!
玄関は、明るい雰囲気です。
オレンジとホワイトの壁に、ブラックの玄関扉がポイント◎
カウンターが付いているので、
玄関の小物置き場としても活躍してくれそうです!
玄関エリアからは、バルコニーへも出られるようになっています。
グレーの壁がポイントのシンプルなバルコニーです!
そのまま進むと、洋室です。
広さ13.5帖と広々したワンルームになっています。
ワンルームのお部屋ですが、L字型タイプになっているので、
リビングダイニングエリアと寝室エリアのエリア分けもしやすそうです◎
壁の一部は、ブロックガラスになっているのもお洒落ポイントです。
紺色タイルがお洒落なペニンシュラキッチン。
ガスコンロ3口で、キッチン設備も充実しています。
収納棚があるほか、作業エリアの下は抜けた仕様になっているので、
椅子などを置くとダイニングテーブルとしても使えます!
洋室の奥には、クローゼットもあります。
ハンガーポールが2段、シンプルな棚収納もあるので収納面も◎
最後に水回りを見ていきます!
水回りは、アメリカンセパレートタイプになっています。
紺色タイルが敷き詰められたお洒落な内装です。
シンプルな台と丸い洗面ボウルな洗面台。
その隣には、洗濯機置き場もあります。
こちらはお手洗い。
温水洗浄便座です。
浴室は、ホワイトで清潔感ある内装です。
ワイドな鏡がポイント◎
さらに窓が付いているので、換気面も◎
追焚機能や浴室乾燥機などもついた充実設備になっています。
いかがでしたか?
ブルーブロックとホワイトのお洒落デザイナーズワンルームです。
広々した洋室には、キッチンにある紺色タイルやガラスブロックなど、
大人お洒落な雰囲気の内装になっています。
全体的に明るいお部屋です。
さらに、こちらのお部屋、ペット飼育可能なのもポイントです◎
敷金・礼金は無料で、初期費用も抑えられます!
大阪で、「デザイナーズ」「ペット」「ビッグワンルーム」賃貸物件をお探しなら、
マニアックな部屋情報をお届けする、「物件マニア」で!
気になる方は、ぜひお問い合わせください。