大阪[賃貸物件]ブログ記事の詳細
「物件マニア大阪版」では過去にもこだわりの効いた様々なお部屋をご紹介しております!
似た条件の物件をお探しの場合は、ご紹介させて頂きますので、お気軽にお問い合せください。
スキップで奏でる、コンセプトデザイナーズ。
賃 料
- 共益費:-
敷金/礼金:-/-
保証金/解約引:-/-
間取り
ー 専有面積:53.31 ㎡
間取り画像をクリックしている間、拡大画像が表示されます。
基本情報
| 所在地 | |
|---|---|
| 大阪府大阪市西区本田1丁目 | |
| アクセス | |
| 大阪メトロ中央線 阿波座駅 徒歩8分 | |
| 物件種別 | マンション |
| 構 造 | 鉄筋コンクリート |
| 完 成 | 2008年7月 |
| 階 層 | 地上14階建 |
| 駐車場 | 有 |
| 駐輪場 | 有 |
| バイク置場 | |
| 物件設備 | |
| 防犯カメラ、オートロック、駐輪場あり、エレベータ、水道(公営)、ガス(都市)、排水(下水) | |
| 生活施設 | |
| スーパー:C&Cエンド九条店まで516m スーパー:阪急オアシス 新町店まで617m スーパー:阪急オアシス新町店まで234m コンビニ:ファミリーマート本田みなと通店まで437m ドラッグストア:マツモトキヨシ九条店まで589m 病院:中央急病診療所まで590m 役所:大阪市西区役所まで652m 図書館:大阪市立中央図書館まで894m 公園:松島公園まで293m |
|
部屋情報
| 階 数 | 1階 |
|---|---|
| 方 角 | 東南向き |
| 部屋設備 | |
| システムキッチン、温水洗浄便座、カウンターキッチン、浴室乾燥機、オートバス、バス専用、シャワー、コンロ(四口以上)、ウォークインクローゼット、床暖房、エアコン、室内洗濯機置き場、バルコニー、インターネット使用料無料、TVドアホン | |
| 備 考 | |
| デザイナーズ、メゾネット、ペット可、二人入居可、保証人要 | |
この記事の担当店舗
似た条件でお探しの場合、担当店舗へお電話いただくか、以下の「希望条件リクエスト」よりメールでリクエスト頂けましたら、条件に合った物件をご紹介させて頂きます。 お電話の際は、サイト名と記事番号をお伝えいただくとスムーズです。
| サイト名 | 物件マニア賃貸売買版 [大阪] |
|---|---|
| 記事番号 | b11472 |
BRUNO不動産株式会社
エイブルネットワーク肥後橋うつぼ公園前店
06-6459-4555
| 所在地 | 大阪市西区京町堀1-10-21 |
|---|---|
| アクセス | 地下鉄四ツ橋線 肥後橋駅7番出口より南西へ徒歩3分 |
店舗マップを確認
ボタンをクリックしている間、マップが表示されます。
-











今回ご紹介するのは大阪市西区本田
地下鉄千日前線「阿波座」駅 徒歩 9分
地下鉄千日前線「西長堀」駅 徒歩 9分
ちょうど、この2駅の間くらいでしょうか。
駅からは少し歩きますが、川や公園がすぐ近くと
喧騒から一歩離れた自然を感じれる場所。
松島公園と松島少年広場という球場やプールを有する
長堀通り沿いの少し広めの公園が癒しを与えてくれそうです。
休日の散歩やジョギングにはもってこいだと。
また、自転車さえあればすぐに中心地に出れる
便利な場所でもあります。
そんな場所に建つ2008年築のデザイナーズマンション。
洗練された高級感のあるモノトーン調の外観。
エントランスや見てくれは洗練された
いかにもデザイナーズマンションという作り。
コンセプトレジデンスの匠空シリーズ。
シリーズの中でもリバービューの、正に最高傑作!
駐車場に駐輪場、EV・防犯カメラ等々、標準設備もバッチリです。
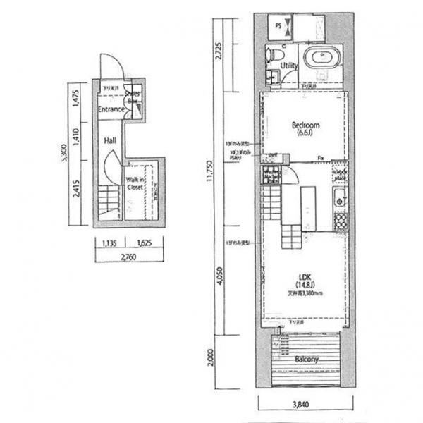
お部屋はというと、53.31平米の1LDK。
結構広めな作りで、特徴は三層作りのスキップ階段。
玄関はふラット仕様で広めのタイル張り。
ホールと合わせてゆったりと使える感じですね。
横には高さのあるシューズボックがあり
靴だけではなく、お出かけグッズなどたくさん仕舞えます。
そして、この玄関部分が1つ目の階層。
奥を見ると、ちょっと小上がりな階段があり
左手の引き戸部分にはなんとっ!
ウォークインクローゼットが設置されています。
結構な広さがあり、サービスルーム的なWICです。
ホールのこの小上がりな階段を登った先が2つ目の階層。
14.8帖のLDK部分へと繋がっています。
LDKはスキップフロアとなっており、かなり広々。
白いタイルの床とコンクリ打ちっ放しの壁など
無機質でいて無骨になりすぎずカッコいい部屋となっていますね。
大きめの窓の外にはウッドデッキのバルコニー。
窓からの彩光も十分、天井も高めで開放感あり。
ただ1Fなので、眺望的には...ですが...
でも、広々としていてウッドデッキなのが良いです。
さらにスキップを上がった部分にキッチンスペース。
メゾネットという言い方もありますが、
階段も短めという事もあり、ココはあえてスキップで。
しかし、何ともよく考えられてる作り。
コアガリをうまく使う事で空間ができています。
キッチンはステンレスのシンプルスタイリッシュ。
スペースもそこそこあるので色々置けそう。
料理する人にも十分な4口ガスのシステムキッチン。
続いて奥に続く部屋へ。
こちらもホワイトなPタイルとコンクリなどの壁。
無機質でクールな作りがカッコ良すぎで
オマケに奥に見える水回りがスケルトンで
これまたスタイリッシュです。
こちらは6.6帖。ベッドルームと名のつく部屋です。
奥まった部分にあるので、プライベート感も満喫。
エアコンもしっかり備え付けで、こちらにも収納棚有り。
この収納棚も結構仕舞える広さがあり
その裏側、出てすぐの部分には室内洗濯機置場が
設置されています。こちらはキッチン側にあります。
ブラックなタイルとベージュのタイルの組み合わせが
なんともおしゃれな水回りとなっています。
この水回りだけでも絵になる雰囲気。
足付きのバスタブが日本っぽくなくカッコいいです。
大きめなシャワーヘッドもホテルライクで良いですね。
デザイナーズならではのこの水回りは
暮らしにも大きく影響を与えてくれそうです。
大きな窓も付いており、寒気も抜群です。
バス・トイレ・洗面オールインワンなのもオシャレの定番。
ガラス張りの水周りなので、キッチンからのスライドドアは必須。
SOHO使用OKという事なので、
キッチンを挟んで、シゴトバとジュウキョを分けれマス。
ペットもOKとの事なので、松島公園で散歩したりとか
シゴトにプライベートにかなり充実できそですね。
ONはお仕事ムードでキッチリ生活。
OFFはのんびりウッドデッキでスローな癒しを。
今回ご紹介した「スキップで奏でる、コンセプトデザイナーズ。」の物件はいかがでしたか?
「ペットも一緒に。オンとオフを使い分けるクールな大人部屋。」と、おすすめ出来るお部屋です!
大阪で、「デザイナーズ」「メゾネット」「スキップフロア」などの賃貸物件をお探しなら、
マニアックな部屋情報をお届けする、「物件マニア」で!
気になる方はぜひ、お問い合わせ下さい!