大阪[賃貸物件]ブログ記事の詳細
「物件マニア大阪版」では過去にもこだわりの効いた様々なお部屋をご紹介しております!
似た条件の物件をお探しの場合は、ご紹介させて頂きますので、お気軽にお問い合せください。
ガレージ付き戸建てに暮らそう。
賃 料
- 共益費:-
敷金/礼金:-/-
保証金/解約引:-/-
間取り
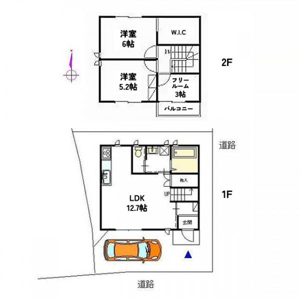
2SLDK 専有面積:69.56 ㎡
間取り画像をクリックしている間、拡大画像が表示されます。
基本情報
| 所在地 | |
|---|---|
| 大阪府大阪市東住吉区鷹合4丁目 | |
| アクセス | |
| 近鉄南大阪線 針中野駅 徒歩8分 | |
| 物件種別 | 一戸建て |
| 構 造 | 木造 |
| 完 成 | 2014年5月 |
| 階 層 | 地上2階建 |
| 駐車場 | 有 |
| 駐輪場 | 有 |
| バイク置場 | 有 |
| 物件設備 | |
| TVモニタ付インターホン、公営水道、都市ガス、下水、フローリング、駐車場あり | |
| 生活施設 | |
| 南百済小学校(780m) コンビニ(240m) スーパー(510m) ドラッグストア(590m) 総合病院(520m) 東住吉鷹合郵便局(300m) |
|
部屋情報
| 階 数 | 1階 |
|---|---|
| 方 角 | 南向き |
| 部屋設備 | |
| IHコンロ、コンロ三口、システムキッチン、給湯、専用バス、専用トイレ、バス・トイレ別、追焚機能、シャワー、シャワー付洗面化粧台、浴室乾燥機、洗面所独立、エアコン、クローゼット、シューズボックス、インターネット対応、バルコニー、室内洗濯機置場 | |
| 備 考 | |
| 敷金なし、駐車スペース1台分付き、二人入居可、即入居可、子供可 | |
この記事の担当店舗
似た条件でお探しの場合、担当店舗へお電話いただくか、以下の「希望条件リクエスト」よりメールでリクエスト頂けましたら、条件に合った物件をご紹介させて頂きます。 お電話の際は、サイト名と記事番号をお伝えいただくとスムーズです。
| サイト名 | 物件マニア賃貸売買版 [大阪] |
|---|---|
| 記事番号 | b12066 |
BRUNO不動産株式会社
エイブルネットワーク住之江公園店
06-6657-7090
| 所在地 | 大阪府大阪市住之江区南加賀屋2-8-25セジュール24 1階 |
|---|---|
| アクセス | 大阪メトロ住之江公園駅4番出口新なにわ筋を渡ってスグ |
店舗マップを確認
ボタンをクリックしている間、マップが表示されます。
-






今回ご紹介するのは、大阪市東住吉区鷹合4。
近鉄南大阪線「針中野駅」徒歩8分
近鉄南大阪線「矢田駅」徒歩10分
地下鉄谷町線「 駒川中野駅」徒歩15分と
3WAYアクセス可能な立地にあります。
周辺には大学や小学校、幼稚園等の学校が集まるエリア。
近隣には飲食店も多くコンビニやスーパー等もあります。
また、西に行けば大きな長居公園もあり
休日のお散歩や毎日のジョギング等にも。
そんな場所に建つ、ガレージ付きの戸建て。
ベージュと焦げ茶のツートン仕様
見た目もコンパクトでかわいいイメージ。
ちょっとした植栽も植えてあります。
そして、何といってもガレージ付き。
青空ガレージではありますが、嬉しいスペース。
側面にも敷地が多少あるので自転車も置けます。
バイクも大きすぎなければ置けそうですよね。
玄関扉も焦げ茶のウッド仕様でおしゃれ。
2F建の2SLDKタイプ(69.56平米)。
LDK12.7帖、洋室6帖と洋室5.2帖+S3帖
もひとつ+W.I.Cという間取り。
収納面が豊富で結構広いお部屋です。
新婚さんやご夫婦はもちろん
ファミリーさんにもおすすめな間取り。
玄関扉はダブルロック仕様で、TVモニターフォン付き。
セキュリティ面も安心して暮らせそうです。
こちらは玄関から入って見たLDK12.7帖。
かなり広々なリビングダイニングです!
キッチンはワイドタイプで収納も豊富。
床下収納まで付いており食材のストック等も便利。
側面には窓も付いており、風通しも良いです。
シンクもワイドな上、作業スペースもしっかりあり
料理好きの方も嬉しい設備となっています。
IH3口コンロで火元も安心安全。
料理もたくさん作れます。
奥にも広いスペースで冷蔵庫も難なく置けますね。
続いて、水回り。
洗面脱衣所には室内洗濯機置場が有り窓付き。
湿気のこもる心配もなくて良いです。
洗面台はシャンプードレッサー仕様のシステム洗面で
小物等の収納もしっかりと付いています。
洗面所内の扉からはトイレにも繋がってます。
結構広々とゆったり空間でリラックスできますね。
トイレもしっかり窓が付いており結構小窓の多い家です。
バスルームはオートバスや浴室乾燥機等が付いた
システムバスとなっており、真っ白なバスルーム。
バスタブもソコソコ大きめでゆったりできそうです。
続いて2Fへ。
こちらが6帖の洋室。側面に窓があり
写っていませんが、小さな窓が隅にもある模様。
奥に見える奥まっている部分がウォークインクローゼット。
こちらもあいにく画像がありませんが結構大きめの空間。
コチラが5.2帖の洋室。
奥には高さのある大きめのクローゼット付き。
左側の扉は、階段への扉となてます。
こちらも側面に窓があり明るいお部屋ですね。
基本的にホワイトな壁とナチュラルなフローリングで統一。
外観もですがほっこり系のお家となってます。
そしてこちらが、3帖のフリールーム。
何度として使うも良し。お子様が小さいなら子供部屋も良し。
ただただ、プレイルームにするも良し。趣味の部屋などなど
様々な使い方ができるシンプルなお部屋となっています。
こちらから、バルコニーへと出られる模様。
最後にエアコン、TVモニターフォン、バス操作パネル。
こちらはリビングに全てついているものです。
今回ご紹介した「ガレージ付き戸建てに暮らそう。」の物件はいかがでしたか?
「駐車場付きファミリーで暮らせる貸家 in 針中野」と、おすすめ出来るお部屋です!
大阪で、「戸建て賃貸」「貸家」「ファミリー向け」等の賃貸物件をお探しなら、
マニアックな部屋情報をお届けする、「物件マニア」で!
気になる方はぜひ、お問い合わせ下さい!