大阪[賃貸物件]ブログ記事の詳細
「物件マニア大阪版」では過去にもこだわりの効いた様々なお部屋をご紹介しております!
似た条件の物件をお探しの場合は、ご紹介させて頂きますので、お気軽にお問い合せください。
ペットと暮らす!高級感あるホワイト1LDK
賃 料
- 共益費:-
敷金/礼金:-/-
保証金/解約引:-/-
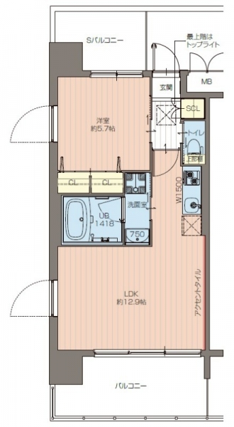
間取り
1LDK 専有面積:41.76 ㎡
間取り画像をクリックしている間、拡大画像が表示されます。
基本情報
| 所在地 | |
|---|---|
| 大阪府大阪市福島区鷺洲5丁目 | |
| アクセス | |
| JR大阪環状線 福島駅 徒歩9分 | |
| 物件種別 | マンション |
| 構 造 | 鉄筋コンクリート |
| 完 成 | 2021年1月 |
| 階 層 | 地上11階建 |
| 駐車場 | 有 |
| 駐輪場 | 有 |
| バイク置場 | 有 |
| 物件設備 | |
| エレベーター、宅配BOX、都市ガス、排水下水、オートロック | |
| 生活施設 | |
| KOHYO 鷺洲店:66m イオンスタイル海老江:350m サンディ 福島鷺洲店:450m |
|
部屋情報
| 階 数 | 10階 |
|---|---|
| 方 角 | 東向き |
| 部屋設備 | |
| BS端子、CS、インターネット無料、専用バス、温水洗浄便座、浴室乾燥機、洗髪洗面化粧台、室内洗濯機置場、ペット相談可、2人入居可、バストイレ別 | |
| 備 考 | |
| 角部屋 | |
この記事の担当店舗
似た条件でお探しの場合、担当店舗へお電話いただくか、以下の「希望条件リクエスト」よりメールでリクエスト頂けましたら、条件に合った物件をご紹介させて頂きます。 お電話の際は、サイト名と記事番号をお伝えいただくとスムーズです。
| サイト名 | 物件マニア賃貸売買版 [大阪] |
|---|---|
| 記事番号 | b12529 |
BRUNO不動産株式会社
エイブルネットワーク肥後橋うつぼ公園前店
06-6459-4555
| 所在地 | 大阪市西区京町堀1-10-21 |
|---|---|
| アクセス | 地下鉄四ツ橋線 肥後橋駅7番出口より南西へ徒歩3分 |
店舗マップを確認
ボタンをクリックしている間、マップが表示されます。
Y








今回ご紹介するのは、大阪市福島区鷺洲にあるマンションのお部屋。
シンプルな内装がお洒落な築浅ホワイト1LDKです。
最寄り駅は、
大阪環状線「福島駅」徒歩9分
阪神本線「野田駅」徒歩10分
大阪メトロ千日前線「野田阪神駅」徒歩12分
JR東西線「海老江駅」徒歩13分
と複数路線アクセスになっています。
道を挟んで、マンションの目の前がスーパーのため、
食料品や日用品の買い出しにも便利な環境です。
その他にもスーパーが複数店舗ある他、
コンビニやドラッグストアなども需実しているのもポイントです◎
2021年1月築の11階建てマンション。
石積み壁とグレーな高級感ある外観です。
ブラウン×ホワイトな広々したエントランスロビーです。
ダークブラウンな飾り棚と
オレンジライトの高級感あるデザインになっています。
共用エリアには、お庭のようなエリアがあります。
洋館のようなお洒落な雰囲気を感じます!
石畳を囲うように植栽が植えられており、
ナチュラルさもあるエリアになっています◎
続いて、室内を見ていきます。
玄関は、オレンジブラウンな土間がポイント!
コンパクトめなサイズ感ですが、
シューズクローゼットや姿見が付いており、
使い勝手も良さそうです◎
廊下は、
ホワイト木目なフローリングの明るい内装になっています。
続いて、水回りです。
洗面脱衣所は、ホワイト基調で清潔感ある空間になっています。
三面鏡タイプの洗面台は、木目なデザインがお洒落です!
同じく、洗面脱衣所には、洗濯機置き場もあります。
こちらは浴室。
ナチュラルな木目テイストがお洒落です!
浴槽や洗い場が広く、ワイドな鏡もポイント◎
浴室乾燥機能も付いています。
また写真はありませんが、
お手洗いは温水洗浄便座タイプになっています。
上部には棚が付いているので、ストック置き場にも困りません。
続いて、お部屋です。
こちらは、5.7帖の洋室です。
ホワイト木目のナチュラルな内装になっています。
お部屋には、クローゼットや広めなバルコニーも付いています。
LDKは、12.9帖の洋室です。
洋室と同じく、ホワイト基調で明るい内装になっています。
バルコニーへの掃き出し窓の他に、
窓が付いているので、彩光面も良さそうです。
お部屋の一部の壁がホワイトタイルになっています。
お洒落さと高級感のあるデザインです◎
続いて、キッチンです!
ガスコンロ2口の設備で、
作業エリアもしっかり確保されています。
赤系なブラウンカラーがポイントのデザインになっています。
最後に、バルコニーはこちら。
別部屋の参考写真になりますが、
ウッドデッキ風な木目バルコニーがお洒落なデザインです!
いかがでしたか?
シンプルな内装がお洒落な築浅ホワイト1LDKです。
ホワイト木目のナチュラルな内装。
ブラウンなキッチンやホワイトタイル風な壁などは、
室内にアクセントとしてもお洒落です!
設備面が充実しているのもポイント◎
またペットの飼育も相談可能になっています◎
大阪で、「築浅」「お洒落」「ペット」賃貸物件をお探しなら、
マニアックな部屋情報をお届けする、「物件マニア」で!
気になる方は、ぜひお問い合わせください。