大阪[賃貸物件]ブログ記事の詳細
「物件マニア大阪版」では過去にもこだわりの効いた様々なお部屋をご紹介しております!
似た条件の物件をお探しの場合は、ご紹介させて頂きますので、お気軽にお問い合せください。
都会のオアシスに隣接、唯一無二のリノベ部屋。
賃 料
- 共益費:-
敷金/礼金:-/-
保証金/解約引:-/-
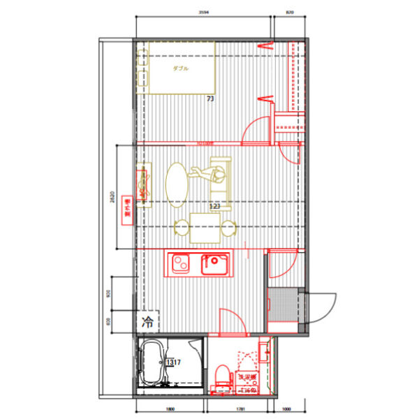
間取り
1LDK 専有面積:43.16 ㎡
間取り画像をクリックしている間、拡大画像が表示されます。
基本情報
| 所在地 | |
|---|---|
| 大阪府大阪市西区京町堀1丁目 | |
| アクセス | |
| 大阪メトロ四つ橋線 肥後橋駅 徒歩8分 | |
| 物件種別 | マンション |
| 構 造 | 鉄骨鉄筋コンクリート |
| 完 成 | 1991年2月 |
| 階 層 | 地上11階建 |
| 駐車場 | |
| 駐輪場 | 有 |
| バイク置場 | |
| 物件設備 | |
| 防犯カメラ、オートロック、宅配ボックス、エレベータ有、駐輪場あり、水道(公営)、ガス(都市)、排水(下水) | |
| 生活施設 | |
| 小学校:大阪市立西船場小学校まで417m ショッピングセンター:淀屋橋odonaまで881m スーパー:コーヨー肥後橋店まで366m コンビニ:セブンイレブン大阪靭公園東店まで52m ドラッグストア:キリン堂肥後橋店まで374m |
|
部屋情報
| 階 数 | 10階 |
|---|---|
| 方 角 | 北向き |
| 部屋設備 | |
| システムキッチン、給湯、温水洗浄便座、洗面所独立、バス専用、バス・トイレ別、シャワー、IHコンロ、コンロ(二口)、CATV、BSアンテナ、全居室収納、クローゼット、シューズボックス、エアコン、室内洗濯機置き場、バルコニー、フローリング、タイル貼り、照明器具付き | |
| 備 考 | |
| デザイナーズ、リノベーション、敷金・礼金なし、二人入居可 | |
この記事の担当店舗
似た条件でお探しの場合、担当店舗へお電話いただくか、以下の「希望条件リクエスト」よりメールでリクエスト頂けましたら、条件に合った物件をご紹介させて頂きます。 お電話の際は、サイト名と記事番号をお伝えいただくとスムーズです。
| サイト名 | 物件マニア賃貸売買版 [大阪] |
|---|---|
| 記事番号 | b13781 |
BRUNO不動産株式会社
エイブルネットワーク肥後橋うつぼ公園前店
06-6459-4555
| 所在地 | 大阪市西区京町堀1-10-21 |
|---|---|
| アクセス | 地下鉄四ツ橋線 肥後橋駅7番出口より南西へ徒歩3分 |
店舗マップを確認
ボタンをクリックしている間、マップが表示されます。
-








今回ご紹介するのは、大阪市西区京町堀1。
地下鉄四つ橋線「肥後橋駅」「本町駅」より徒歩5分、
地下鉄御堂筋線「淀屋橋駅」からは徒歩9分。
3WAYアクセスが可能な利便性の高い立地です。
とはいえ、ここでは電車よりも自転車が主役。
梅田や心斎橋へも、15分も走れば到着するという快適な距離感。
都会でありながら、自由に動き回れるエリアです。
さて、この街のオアシスといえば靱公園。
そのすぐ横にそびえる11階建のビル。
外観は、まさにオフィスビルそのもの。
どこかレトロな雰囲気もあり、趣のある佇まいです。
1階にはレストランが入っており、利便性も抜群。
駐車場と駐輪スペースも完備されているので、
車でも自転車でもスムーズにアクセスできます。
こちらがエントランス。
入り口前にはメールボックスが設置され、
シンプルながらも機能的なデザインです。
中に入ると広々としたエントランスホール。
ゆったりとした空間が広がります。
入り口側を振り返ると、
青い扉のエレベーターが目に入ります。
4階の共用部にはコワーキングスペースが。
靱公園の緑を眺めながら、
落ち着いた空間で仕事ができる環境です。
Wi-Fi、TV、スクリーンも完備。
テレワークにも最適な設備が整っています。
さて、こちらのマンション。
お部屋はすべてフルリノベーション済みで、
タイプごとに異なるこだわりが施されています。
今回ご紹介するのは、10階の1LDK(43.16平米)。
LDK13.5帖+洋室3.2帖の間取りで、
バルコニーが2つ付いた贅沢な設計です。
玄関を開けた瞬間、洗練された空間が広がります。
床には渋みのある石タイルが敷かれ、
オープンタイプのシューズボックスはナチュラルウッド仕様。
グレイッシュな玄関扉が、落ち着いた雰囲気を演出。
玄関を抜けるとまず洋室空間。
床は味わい深いフローリングで、
ホワイトの壁や天井が温かみをプラス。
横の壁はネイビーなアクセントカラー。
カウンターの様な壁で仕切られた変わった間取り。
同じアングルで。
カウンター壁の上にはブラインドが落とせ
しっかりとプライベートに仕切ることが可能です。
開けるとかなりオープンになるし
落とすとプライベート感もあり良い仕切り具合です。
奥は角面もあり横にはバルコニーへの大きな窓。
彩光もしっかりと入り明るいお部屋とんっています。
ホワイトが一段とコントラストが付き白さが際立ちます。
バルコニーは側面に長く設置されています。
反対側には観音開きタイプのクローゼット。
上部に棚付きでハンガーポールも設置済み。
たくさんの服が掛けられる上、帽子や小物も
しっかり仕舞える奥行きもあります。
カウンターとキッチンエリアの真ん中に空間。
小上がりになった部分にはアイランドキッチン。
空間全体に開放感があり、キッチンのネイビーも
床や壁の白さと温かみを感じさせるこびネーション。
エアコンも完備しています。
キッチンは大判タイルに囲まれ、
ウッド素材のボディとホワイトの天板が絶妙なバランス。
下の収納は広々としており、上部には作り付けの棚も設置済み。
オープンタイプでおしゃれなウッド作りです。
キッチンの奥には水回り。
洗面脱衣所には洗面台・室内洗濯パン・トイレがまとまった
アメセパタイプ。
洗面台は広く、作り付けのウッド棚がアクセント。
その上には角型のボウルが配置され、
ワイドなミラーと背面のタイルが調和し、
スタイリッシュで洗練された印象。
トイレ部分も、落ち着いた色合いのアクセントクロスと、
テラコッタ風のフロアクロスが温かみをプラス。
ウォシュレット完備で機能性も充実。
隣には室内洗濯パンも設置されています。
バックの壁は落ち着いた色合いでシックな印象。
バスルームは広めの設計で、
洗い場も十分なスペースが確保されています。
大きめの窓が設置されており、換気もスムーズ。
リノベーションによって生まれ変わった住空間。
ナチュラルな温もりと洗練されたデザインが融合した1LDK。
靱公園のすぐそばという贅沢なロケーションで、
都会の利便性と自然の癒しを享受。
シンプルかつスタイリッシュなベースが整い、
あとは自分のスタイルに合わせて家具をレイアウトするだけ。
そんな魅力あふれる一室です。
今回ご紹介した「都会のオアシスに隣接、唯一無二のリノベ部屋。」の物件はいかがでしたか?
「木の温もりとモダンなデザインが調和、洗練されたフルリノベーションな空間。」と、おすすめ出来るお部屋です!
大阪で、「おしゃれな〜」「変わった〜」「おもしろい〜」賃貸物件をお探しなら、
マニアックな部屋情報をお届けする、「物件マニア」で!
気になる方はぜひ、お問い合わせ下さい!