大阪[賃貸物件]ブログ記事の詳細
「物件マニア大阪版」では過去にもこだわりの効いた様々なお部屋をご紹介しております!
似た条件の物件をお探しの場合は、ご紹介させて頂きますので、お気軽にお問い合せください。
上質を知る大人のための、開放的空間。
賃 料
- 共益費:-
敷金/礼金:-/-
保証金/解約引:-/-
間取り
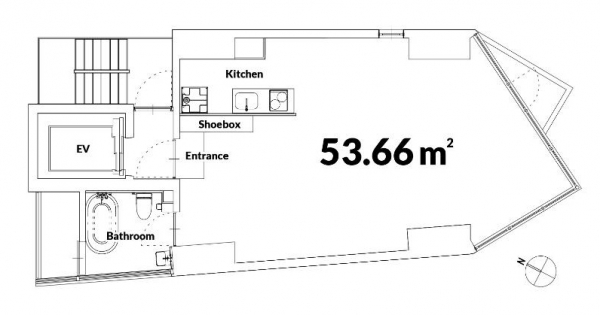
1LDK 専有面積:53.66 ㎡
間取り画像をクリックしている間、拡大画像が表示されます。
基本情報
| 所在地 | |
|---|---|
| 大阪府大阪市西区靱本町1丁目 | |
| アクセス | |
| 大阪メトロ御堂筋線 本町駅 徒歩2分 | |
| 物件種別 | マンション |
| 構 造 | |
| 完 成 | 2018年1月 |
| 階 層 | 地上10階建 |
| 駐車場 | |
| 駐輪場 | |
| バイク置場 | |
| 物件設備 | |
| オートロック、宅配ボックス、防犯カメラ、エレベーター、セキュリティ会社加入済、タイル貼り、ごみ出し24時間OK、公営水道、都市ガス、下水 | |
| 生活施設 | |
| コンビニ(50m) スーパー(350m) ドラッグストア(310m) 公園(350m) 銀行(480m) やなぎ屋クリーニング(450m) |
|
部屋情報
| 階 数 | 9階 |
|---|---|
| 方 角 | 西向き |
| 部屋設備 | |
| ガスコンロ設置済、コンロ二口、システムキッチン、給湯、専用バス、専用トイレ、バス・トイレ別、シャワー、シャワー付洗面化粧台、温水洗浄便座、浴室乾燥機、洗面所独立、TVモニタ付インターホン、エアコン、全居室収納、シューズボックス、光ファイバー、フローリング、出窓、バルコニー、室内洗濯機置場 | |
| 備 考 | |
| デザイナーズ、角部屋、二人入居可、ペット可(小型犬1匹のみ、敷金1ヵ月要)、SOHO、事務所利用可(敷金1カ月、礼金1カ月UP)、ネット無料 | |
この記事の担当店舗
似た条件でお探しの場合、担当店舗へお電話いただくか、以下の「希望条件リクエスト」よりメールでリクエスト頂けましたら、条件に合った物件をご紹介させて頂きます。 お電話の際は、サイト名と記事番号をお伝えいただくとスムーズです。
| サイト名 | 物件マニア賃貸売買版 [大阪] |
|---|---|
| 記事番号 | b14361 |
BRUNO不動産株式会社
エイブルネットワーク肥後橋うつぼ公園前店
06-6459-4555
| 所在地 | 大阪市西区京町堀1-10-21 |
|---|---|
| アクセス | 地下鉄四ツ橋線 肥後橋駅7番出口より南西へ徒歩3分 |
店舗マップを確認
ボタンをクリックしている間、マップが表示されます。
-










今回ご紹介するのは、大阪市西区京町堀2。
大阪メトロ御堂筋線・四ツ橋線・中央線『本町駅』駅徒歩2分の場所。
通勤・通学にも便利なアクセス。
都心の利便性と自然の癒しが共存する魅力的なロケーション。
目の前には四季折々の表情を楽しめる靱公園が広がり
散歩やランニング、リフレッシュの場として最適です。
徒歩圏内にはスーパーやコンビニ、ドラッグストアも
揃い、日々の買い物もスムーズ。また、おしゃれなカフェや
レストランが点在し、ランチやディナーの選択肢にも困りません。
梅田や心斎橋エリアへの移動も簡単で、休日の
ショッピングにも好立地。医療機関や銀行など
生活インフラも充実しており、暮らしに安心感。
都心にいながらも緑に囲まれた、穏やかな
ライフスタイルを叶えてくれるエリアです。
そんな場所に建つ、全面ガラス張りが目を引く
デザイナーズマンション。シャープで個性的な外観が
まるでアート作品のように街に映えてます。
建物全体はコンクリート打ちっぱなしとミニマルな
造りで、無機質ながらも洗練された印象です。
エントランスにはオートロックと防犯カメラを
完備し、セキュリティ面も安心です。
無駄を削ぎ落としたスタイリッシュな空間設計で
住む人のセンスが光ります。
共用部には宅配ボックスやメールボックスが
整備され、利便性も抜群。
都会でアーバンライフを楽しみたい方に
ぴったりな、個性派マンションです。
お部屋は9Fに位置する角部屋1LDK(53.66平米)。
広々とした間取りとなっています。間取り図を見ると
ワンルームの様な感じでもあります。
また、ペット可、SOHO・事務所利用可能という条件。
二人入居も可能となっています。
玄関扉はホワイトで統一され、シンプルかつ清潔感のある印象。
シューズボックスは足元が間接照明で照らされており、
おしゃれなとデザイン性をプラスしています。
室内に入ると広がる、開放的な約30帖の広々空間。
グレーのコンクリ壁とライトウッド床が絶妙にマッチ。
家具レイアウトもしやすいシンプルな間取りです。
奥行きのあるリビングスペースは、照明レール付きで演出自在。
天井埋め込み型のエアコンがデザインの邪魔をせず、
すっきりとした空間を保っています。
リビング横の大きなガラス窓からは緑がのぞき、
都会の中にいながら自然も感じられるロケーション。
打ちっぱなしの壁がギャラリーのような雰囲気です。
天井にはスポットライトの照明レール。
インダストリアルな美しさと柔らかな明かりが両立。
夜にはムードのある空間に変化します。
キッチンはステンレスのシンプルな2口コンロとシンクを装備。
白壁とコンクリート壁の対比がスタイリッシュ。
機能性も申し分なく、調理も快適にこなせます。
洗面エリアには大きなすりガラス窓があり、自然光がたっぷり。
白でまとめられた空間は清潔感があり、
朝の支度も気持ちよくスタートできます。
トイレも白基調で、洗練されたホテルライクな設計。
温水洗浄機能付きで、機能面も充実。
シンプルながら上質な空間です。
バスルームにはゆったりサイズのバスタブを採用。
カーブの美しいデザインが特徴的で、
くつろぎの時間を贅沢に演出します。
壁に設置されたモニター付きインターホンでセキュリティも安心。
来客対応や録画機能など便利な機能も完備。
スマートで安全な暮らしを支えます。
都会の真ん中で、アートのような空間に暮らす贅沢。
デザイン性と開放感を兼ね備えた、まるでギャラリーのような住まい。
自然光と無機質な美しさが調和する、洗練された日常。
個性と上質さを求めるあなたにこそ、ふさわしい一室です。
今回ご紹介した「上質を知る大人のための、開放的空間。」の物件はいかがでしたか?
「大きな窓と無機質なコンクが描く、ペットと暮らせるデザイナーズ。」と、おすすめ出来るお部屋です!
大阪で、「デザイナーズ」「ペット可」「SOHO・事務所」賃貸物件をお探しなら、
マニアックな部屋情報をお届けする、「物件マニア」で!
気になる方はぜひ、お問い合わせ下さい!